Arkiste
Copied to clipboard!

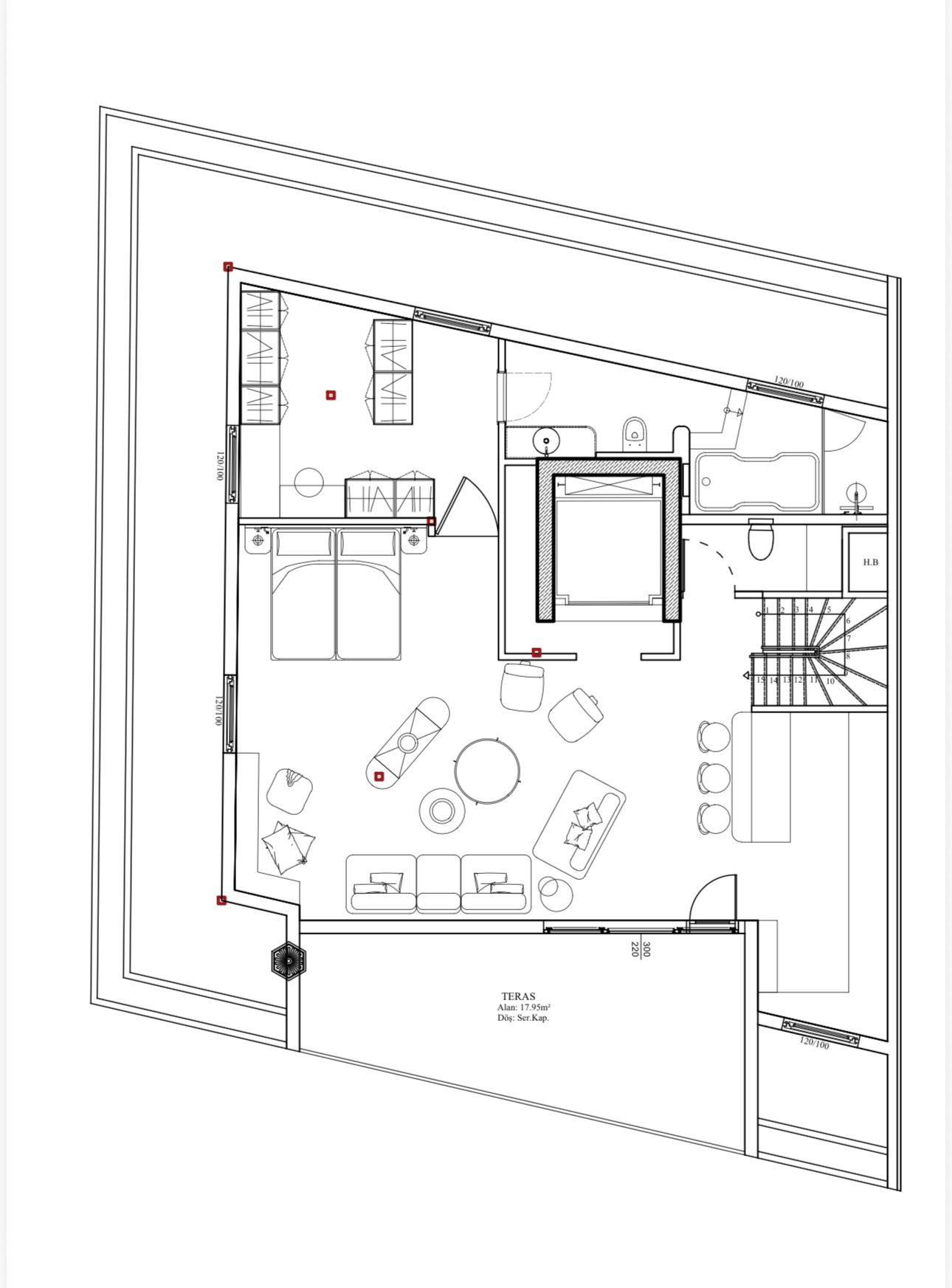
Cozy Penthouse Residence in Istanbul

Residential
Cozy Penthouse Residence in Istanbul

  • Year: 2025 
  • Area: 100 m2
  • Architects: SELF 

This project showcases a thoughtfully designed penthouse apartment located in Istanbul, Turkey. The residence features a harmonious layout comprising a bedroom, kitchen, bathroom, living room, and a dedicated dressing area.

Commissioned as a freelance 3D visualization for Labottihome Architecture, this work highlights an elegant and warm interior atmosphere. The design emphasizes rich brown tones, complemented by natural marble, wood elements, and decorative plaster textures, creating a sophisticated yet inviting living space.

All spatial planning and 3D visualizations were personally crafted to capture the unique character and comfort of this urban retreat.



No comments yet.